Leave a Message

Thank you for your message. We will be in touch with you shortly.

See all photos

1312 W Webster Unit 1W

$1,250,004 1312 W Webster , Unit 1W, Chicago, IL 60614

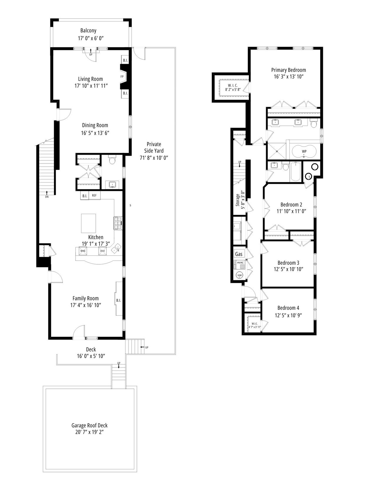
Absolutely stunning and truly unique, this extra-wide four-bedroom duplex down is perfectly positioned in Lincoln Park's coveted Oscar Mayer school district. With the feel of a single-family home and four beautifully designed outdoor spaces, including a fully enclosed 500 square foot side yard, this home offers an exceptional opportunity to enjoy both refined interiors and unmatched outdoor living in one of the city's most sought-after neighborhoods. Freshly painted throughout, the home is finished with wide plank hardwood floors, custom millwork, and a layout that balances everyday comfort with elegant entertaining. The main level begins with a formal living room that opens directly to the front terrace, centered around a gas fireplace with custom built-ins. A spacious dining area extends from the living room. At the heart of the home, the oversized chef's kitchen features Viking appliances, a wine fridge, a large island with seating, and a separate breakfast area. The kitchen flows into a generous family room with coffered ceilings and additional built-ins, with access to the rear deck and a garage roof deck with a pergola. All four bedrooms are located on the lower level, complete with radiant heated floors, excellent storage, and a full-size side-by-side laundry room. You immediately feel the width of the home in every bedroom. The primary suite is especially spacious and beautifully appointed, featuring a large walk-in closet and a luxurious bath with dual vanities, a soaking tub, and a steam shower with body sprays and a rainfall showerhead. This serene and private space is a true highlight of the home. The fully enclosed side yard is professionally finished with turf and pavers, creating a quiet, versatile extension of the living space. It is ideal for entertaining, relaxing, or everyday play. Garage parking is included. Ideally located just moments from Floriole, Old Pueblo, Pequod's, and the shops and restaurants along Armitage, this home delivers space and style in an incredible location.

  • Sold
    Status
  • 4
    Bedrooms
  • 3
    Bathrooms

Features & Amenities

Area & Lot

  • Status: Sold
  • Neighborhood: Lincoln Park

Interior

  • Total Bedrooms: 4
  • Total Bathrooms: 3
  • Full Bathrooms: 2
  • Half Bathrooms: 1

Financial

  • Sales Price: $1,250,004

1312 W Webster Unit 1W

The Neighborhood:
Lincoln Park

Within the landmark districts of Lincoln Park, you’ll find historic churches...

Learn More Lincoln Park

Work With Us

Personal referrals continue to be our main source of business, and we take our commitment to our clients seriously. With a proven record for negotiation and a strong drive to succeed,we have consistently sold our listings in under average market time, netting our clients the highest possible price.
Contact Us
Follow Us